( Oprócz agentów nieruchomości pomagających w znalezieniu i zakupie nieruchomości, oddajemy Ci do dyspozycji doświadczonych ekspertów kredytowych, zdolnych architektów wnętrz i zaradnych specjalistów od zarządzania najmem )
WYNAJĘTE ! OFERTA NIEAKTUALNA
Polecam na wynajem świeżo wyremontowane, 3 pokojowe mieszkanie w zrewitalizowanej kamienicy przy ul. Poznańskiej na poznańskich Jeżycach. Wnętrze z niepowtarzalnym – autorskim, charakterem, sprawdzi się zarówno na cele mieszkalne jak i do prowadzenia działalności gospodarczej takiej jak kancelaria prawna czy agencja kreatywna. Istnieje możliwość powiększenia powierzchni najmu poprzez wynajęcie mieszkania obok, przygotowanego w takim samym standardzie.
MIESZKANIE
Mieszkanie znajduje się na drugim piętrze sześciokondygnacyjnego kamienicy, w pełni zlokalizowane od strony ulicy.
Pomieszczenia wysokość 3 m.
Podłoga z desek ze świerku skandynawskiego.
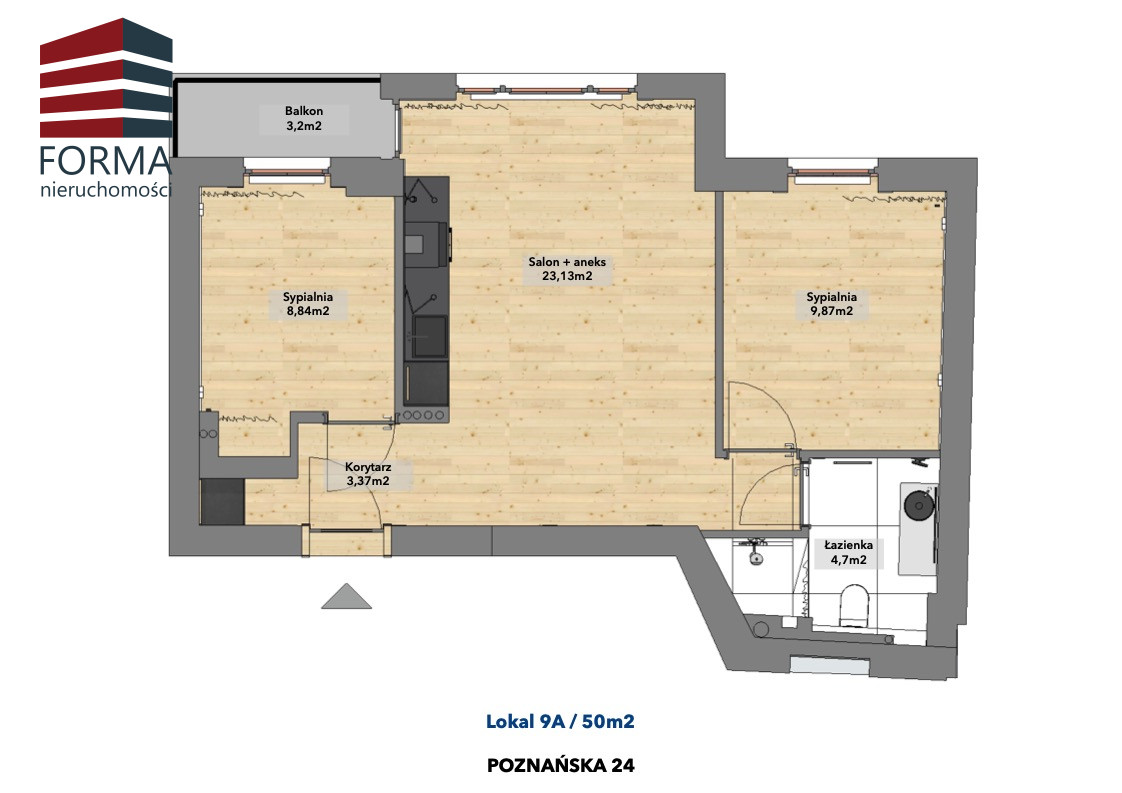
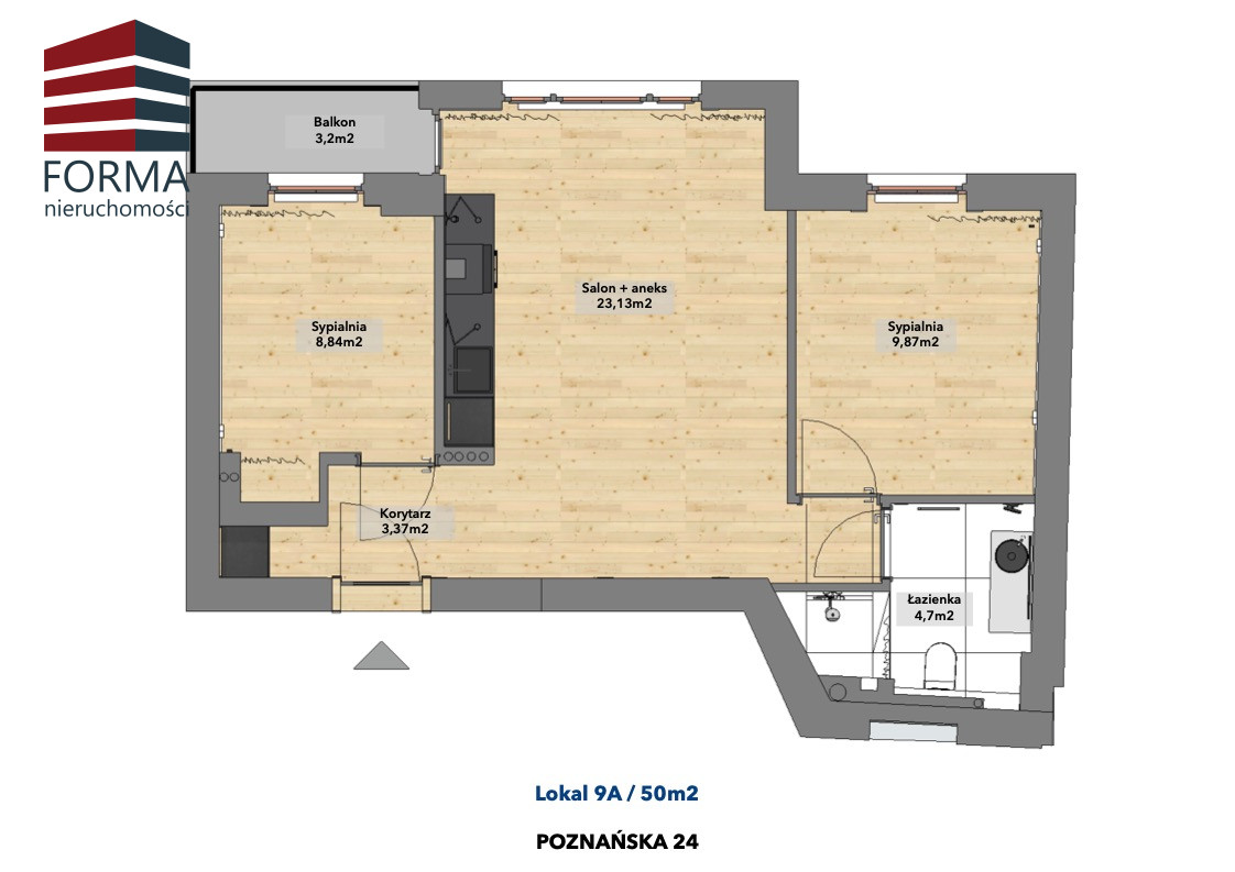
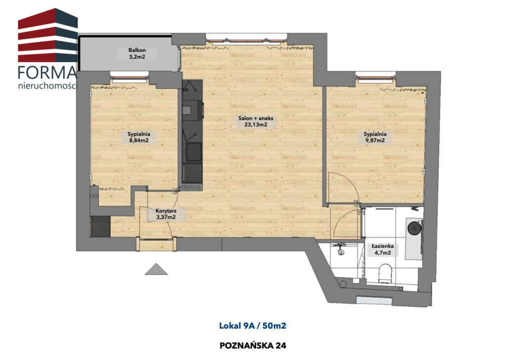
Powierzchnia wynosi 50 m2, a metraż poszczególnych powierzchni kształtuje się następująco:
– salon z aneksem kuchennym: 23,13 m2
- pokój 1: 9,87 m2
- pokój 2: 8,84 m2
- łazienka: 4,7 m2
– korytarz ze schowkiem: 3,37 m2
- balkon: 3,2 m2
KOSZTY
– Czynsz najmu dla właściciela – 2 750 zł,
– Czynsz administracyjny łącznie– 550 zł
(zawiera zaliczkę na wodę ciepłą i zimną oraz na ogrzewanie, CO, opłata eksploatacyjna, zawiera śmieci lub + 25 zł za osobę ).
-Prąd oraz internet – dodatkowo płatne
Jednorazowa kaucja zabezpieczająca zwrotna – 2750 zł
kwoty podane są brutto.
ZASADY WYNAJMU
– oferta przeznaczona dla osób niepalących i nie posiadających zwierząt.
- wynajem w ramach umowy o najem okazjonalny lub instytucjonalny.
- okres umowy najmu minimum 1 rok
- dostępność – do uzgodnienia
- dodatkowe wyposażenie – do uzgodnienia
LOKALIZACJA
Dużym atutem mieszkania jest jego lokalizacja – w samym sercu Jeżyc – dzielnicy w centrum miasta, o ponad 100-letniej tradycji, z doskonałą infrastrukturą handlowo – usługowo – edukacyjną. Mieszkanie znajduje się blisko komunikacji miejskiej tramwajowej oraz autobusowej. Proponowane mieszkanie uosabia wszelkie walory wygodnego miejskiego życia w centrum miasta z bezpośrednim dostępem do terenów zielonych oraz rekreacyjno – sportowych.
SERDECZNIE ZAPRASZAMY NA PREZENTACJE! ( prosimy o wcześniejsze umówienie prezentacji )
Dodatkowe informacje o transakcji udzielamy przez telefon 511 893 075
Oferta Realizowana Przez:
Wojciech Borchon 511 893 075
Nieruchomości Forma
Ul. Słowiańska 53b lokal 6
61-681 Poznań
Współpracujemy z:
-Geodetami
-Doświadczonym biurem doradztwa kredytowego (usługa dla Państwa jest bezpłatna)
-Kancelarią notarialną, która dla naszych klientów udziela zniżek.
Agent prowadzący Wojciech Borchon 511 893 075
– Zapewniamy bezpieczeństwo transakcji oraz obsługę kredytową.
– Powyższy opis ma charakter informacyjny i nie stanowi oferty w rozumieniu przepisów kodeksu cywilnego.
– Informacje umieszczone w ofercie przekazane są przez właścicieli nieruchomości i mogą ulegać zmianom.
– Staramy się aby wszystkie oferty odpowiadały stanowi rzeczywistemu.
Zapraszam na naszą stronę
www.nieruchomosciforma.pl
Numer oferty: 639
Typ oferty: wynajem
Typ nieruchomości: mieszkania
Typ budynku: kamienica
Rok budowy: 1900
Stan budynku: bardzo dobry
Materiał budowy: cegła
Liczba pięter w budynku: 5
Piętro: 2
Liczba pokoi: 3
Powierzchnia: 50.00 m2
Forma własności: własność
Cena za m2: 55.00 zł
Typ kuchni: aneks
Miejsca parkinowe: brak
Zwalniane od: 2023-11-16
Wysokość pomieszczeń: 3000
Liczba łazienek: 1
Ta strona korzysta z ciasteczek aby świadczyć usługi na najwyższym poziomie. Dalsze korzystanie ze strony oznacza, że zgadzasz się na ich użycie. Musisz zaakceptować by korzystać z serwisu